Przewodowy system telewizyjny CCTV w szkole (monitoring szkoły)
|
%20eljot%20systemy.jpg)
Założenia do projektu:
Cele:
- Odstraszenie potencjalnych wandali od niszczenia mienia szkoły
- Zlikwidowanie strat spowodowanych niszczeniem ścian, ogrodzenia, urządzeń zainstalowanych na terenie szkoły
- Zlikwidowanie strat spowodowanych włamaniami, kradzieżami,
- Rejestracja ruchu osób na terenie Szkoły, zwłaszcza w godzinach popołudniowych, w celu identyfikacji osób mających niewłaściwy wpływ na uczniów (chuligani, dealerzy narkotyków itp.)
- Zmniejszenie kosztów ochrony fizycznej
Sposoby ochrony terenu:
- Ciągła obserwacja terenu przez system kamer telewizyjnych
- Wyświetlanie obrazu z kamer na ekranie dedykowanego komputera
- Rejestracja obrazu z kamer na twardym dysku komputera
- Alarmowanie dźwiękiem w momencie detekcji ruchu
- Możliwość szybkiego i łatwego odtwarzania nagrań archiwalnych,
- Możliwość telefonicznego powiadamiania wyznaczonych osób (jednostek), o detekcji ruchu w wybranych obszarach działania kamer
Wymagania dotyczące jakości obrazu:
- Możliwość identyfikacji osób, w czasie dokonywania aktów wandalizmu, chuligaństwa, włamania, kradzieży itp.
Oświetlenie terenu:
- Stałe oświetlenie wybranych części monitorowanego terenu,
- Zestaw lamp zawierających czujki ruchu rozlokowane wzdłuż ogrodzenia włączające się automatycznie po wykryciu ruchu (opcja)
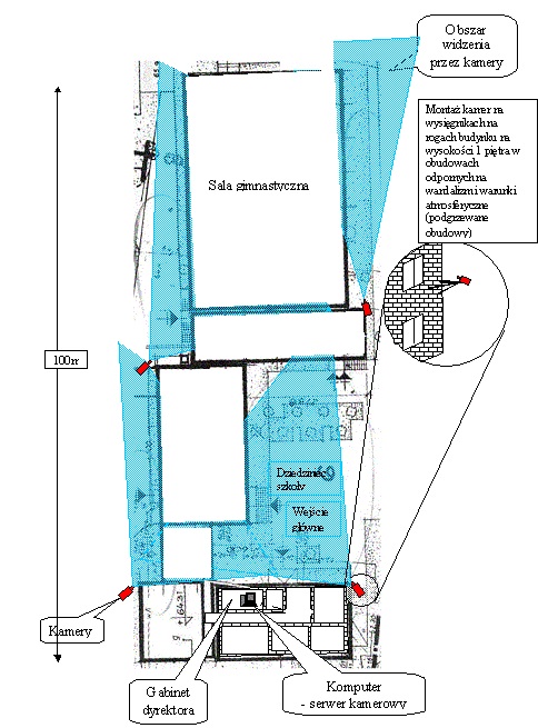
Strefy dozorowe kamer:
- 4 kamery rozlokowane na bryle budynku obserwujące teren bezpośrednio przylegający do budynku,
- Możliwość rozbudowy systemu do 16 kamer (opcja)
- Podgląd i sterowanie systemu (gabinet dyrektora lub recepcja)
- Podgląd obrazu z wszystkich kamer na monitorze komputera
- Możliwość odtwarzania nagrań archiwalnych
- Sterowanie rejestracją obrazów na twardym dysku
CCTV wyposażenie:
- Kamery HD/SD - 4 szt.
- Zasilacz dla systemu kamer
- System komputerowy o następujących parametrach:
- komputer PC z Pentium III 500 MHz CPU lub szybszy (zaleca się Pentium III 750 MHz CPU),
- system operacyjny Windows 98 lub wyższy,
- 64 MB RAM minimum, zaleca się 128 MB,
- 10Gb wolnego obszaru na twardym dysku,
- 24 bit karta VGA z pamięcią 8 MB RAM ,
- mikrofon dla zapisu dźwięku
- port PCI do przyłączenia karty telewizyjnej,
- modem 33,6 K lub szybszy (opcja)
- karta dźwiękowa i głośniki dla sygnalizowania alarmu dźwiękowego
- karta telewizyjna z 4 wejściami
Oprogramowanie:
- Serwer
- Stacja robocza
- Zdalna stacja robocza (TCP/IP)
- Zdalna stacja robocza (modem)
Inne funkcje:
- Generowanie alarmów
- Automatyczne nagrywanie
- Zabezpieczenie kamer przed kradzieżą lub dewastacją ( przyłączenie kamer do systemu alarmowego szkoły)
|
Odsłony: 15620